Exclusivité
Photos
Localisation

Maison de ville 76m2 à Florac Trois Rivières


114 000 €

Maison de ville
3 pièce(s)
2 chambre(s)
76m2
Ref.3

⭐ Maison T3 au calme – Florac centre – 72 m² + cave voûtée

À vendre sur la commune de Florac (48400), au cœur du Parc National des Cévennes.

Située au fond d’une impasse, cette maison de village offre un cadre de vie calme et agréable, tout en restant à proximité immédiate des commerces, services et de l’école.

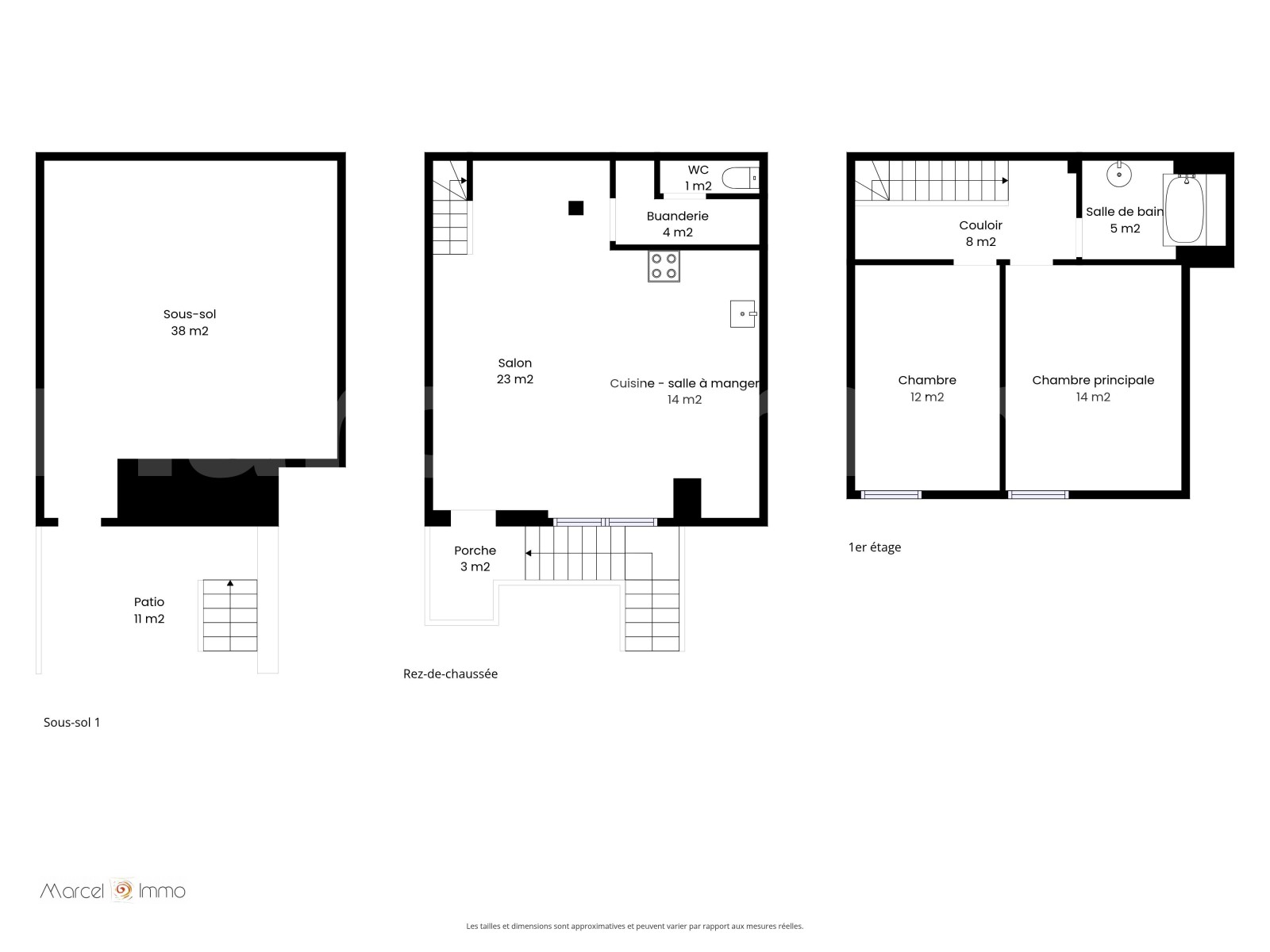
D’une surface habitable d’environ 72 m², elle se compose :
• D’une pièce de vie lumineuse et spacieuse d’environ 38 m²
• De deux grandes chambres
• D’une petite terrasse permettant de profiter de l’extérieur

En complément, une belle cave voûtée d’environ 38 m², idéale pour le stockage ou l’aménagement d’un espace supplémentaire, soit environ 110 m² de surface utile au total.

Possibilité de louer un garage à proximité.

Sur la troisième photo, il s'agit de la maison de gauche, avec les 4 grandes fenêtres.

La maison est en bon état général et habitable immédiatement.
Des travaux d’entretien sont à prévoir, notamment le ravalement de la façade.

Certaines photos ont été volontairement épurées.

Un bien offrant un excellent rapport surface / prix sur Florac, idéal pour :
• Résidence principale
• Premier achat
• Investissement locatif
• Pied-à-terre dans les Cévennes

Pour plus d’informations ou organiser une visite, contactez Carl.

* Honoraires à la charge du vendeur

Partager cette annonce
Prestations intérieures
  • Pièce(s) : 3
  • Chambre(s) : 2
  • Cuisine : américaine
  • Chauffage : individuel électrique radiateur
Prestations extérieures
  • Accès handicapé : Non
  • Ascenseur : Non
  • Digicode : Non
Informations sur le lot
  • Localisation : Florac Trois Rivières
  • Aucune procédure n'est en cours

Agencement

    CAVE
  • Cave : NC
    1ER ETAGE
  • Pièce de vie : 31m2
  • Buanderie : 3.3m2
  • WC : 1.6m2
  • Balcon : 0m2
    2EME ETAGE
  • Palier : 5.15m2
  • Salle de bains : 3.85m2
  • Chambre : 15.05m2
  • Chambre : 12.3m2

Géorisques

Les informations sur les risques auxquels ce bien est exposé sont disponibles sur le site Géorisques. https://www.georisques.gouv.fr
  • Diagnostics de performance énergétiques (DPE)
    D
    Consommation (énergie primaire)
    230
    kWh/m².an
    Emissions (énergie primaire)
    9
    kWh/m².an
    A B C D E F G logement extrêmement performant logement extrêmement peu performant
  • Émissions de gaz à effet de serre (GES)
    B
    Émissions GES (gaz à effet de serre)
    9
    kg CO2/m².an
    A B C D E F G logement peu émetteur de CO2 logement très émetteur de CO2
  • Date du DPE : Information non communiquée par l'annonceur
    Montant estimé des dépenses annuelles d’énergie pour un usage standard est de 1696.00€ par an. Prix moyens des énergies indexés en 20/04/2026 (abonnement compris)
    calendar Created with Sketch.
    Vos mensualités
    Taux d'assurance non inclus

    Marcel immo Florac

  • 43 avenue Jean Monestier, - 48400 FLORAC
  • Carl CATEL (EI)

  • Afficher le téléphone
  • En poursuivant votre navigation sur ce site, vous acceptez l'utilisation de cookies afin de vous proposer des services adaptés à votre profil. En savoir plus