Maison de ville 76m2 à Florac Trois Rivières
114 000 €
⭐ Maison T3 au calme – Florac centre – 72 m² + cave voûtée
À vendre sur la commune de Florac (48400), au cœur du Parc National des Cévennes.
Située au fond d’une impasse, cette maison de village offre un cadre de vie calme et agréable, tout en restant à proximité immédiate des commerces, services et de l’école.
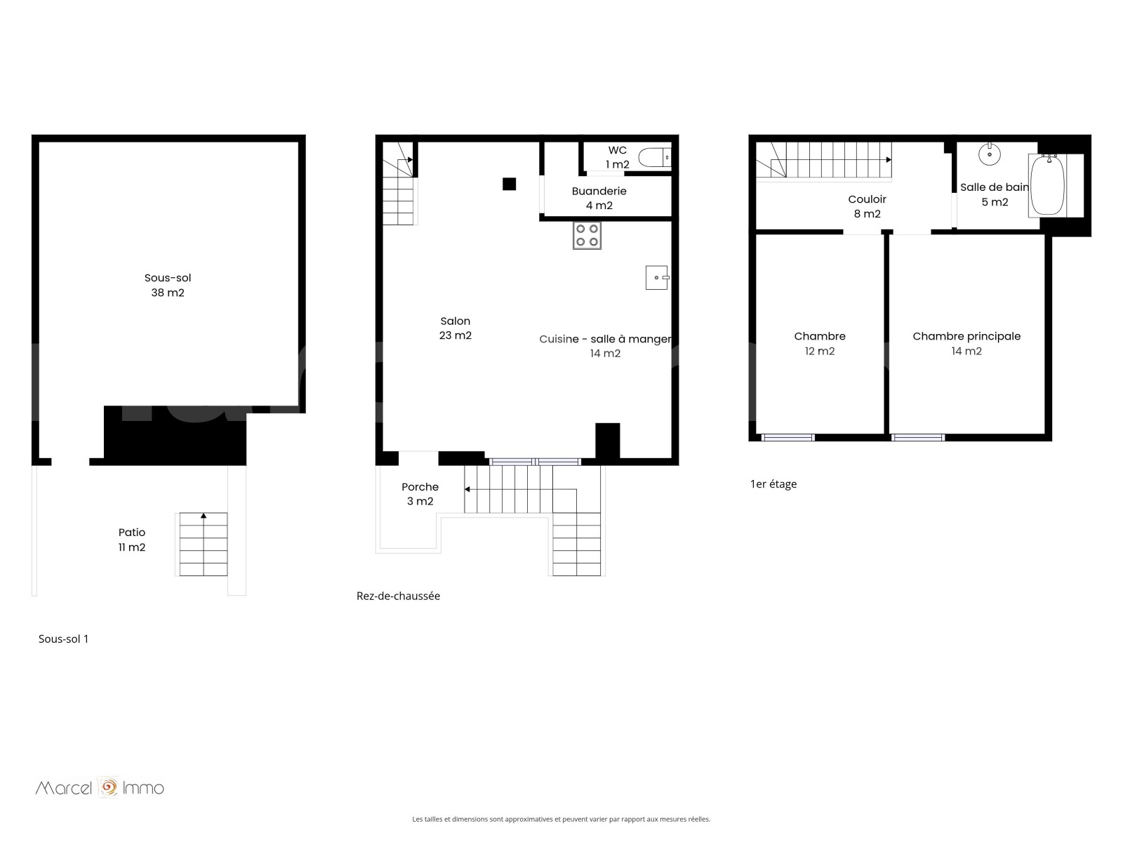
D’une surface habitable d’environ 72 m², elle se compose :
• D’une pièce de vie lumineuse et spacieuse d’environ 38 m²
• De deux grandes chambres
• D’une petite terrasse permettant de profiter de l’extérieur
En complément, une belle cave voûtée d’environ 38 m², idéale pour le stockage ou l’aménagement d’un espace supplémentaire, soit environ 110 m² de surface utile au total.
Possibilité de louer un garage à proximité.
Sur la troisième photo, il s'agit de la maison de gauche, avec les 4 grandes fenêtres.
La maison est en bon état général et habitable immédiatement.
Des travaux d’entretien sont à prévoir, notamment le ravalement de la façade.
Certaines photos ont été volontairement épurées.
Un bien offrant un excellent rapport surface / prix sur Florac, idéal pour :
• Résidence principale
• Premier achat
• Investissement locatif
• Pied-à-terre dans les Cévennes
Pour plus d’informations ou organiser une visite, contactez Carl.
* Honoraires à la charge du vendeur
Prestations intérieures
- Pièce(s) : 3
- Chambre(s) : 2
- Cuisine : américaine
- Chauffage : individuel électrique radiateur
Prestations extérieures
- Accès handicapé : Non
- Ascenseur : Non
- Digicode : Non
Informations sur le lot
- Localisation : Florac Trois Rivières
- Aucune procédure n'est en cours
Agencement
- Cave : NC
CAVE
- Pièce de vie : 31m2
- Buanderie : 3.3m2
- WC : 1.6m2
- Balcon : 0m2
1ER ETAGE
- Palier : 5.15m2
- Salle de bains : 3.85m2
- Chambre : 15.05m2
- Chambre : 12.3m2
2EME ETAGE
Géorisques
Les informations sur les risques auxquels ce bien est exposé sont disponibles sur le site Géorisques. https://www.georisques.gouv.frDiagnostics de performance énergétiques (DPE)
kWh/m².an
kWh/m².an
Émissions de gaz à effet de serre (GES)
kg CO2/m².an
Vos mensualités